
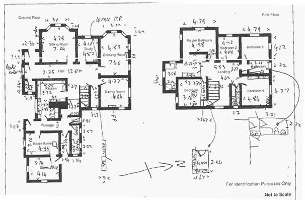
Finished plan, upgraded to include metric & imperial dimensions, kitchen & bathroom fixtures and fittings. Realistic wall thicknesses added to illustrate period architecture.
Click the JPG image above to view our low bandwidth, high resolution, print-ready PDF.
|